商铺名称:深圳市杉本贸易有限公司
联系人:张进辉(先生)
联系手机:
固定电话:
企业邮箱:2850148599@qq.com
联系地址:深圳市龙华新区油松村第十工业区民欢路8号航天科工苑1栋4层
邮编:518000
联系我时,请说是在机床母机网上看到的,谢谢!
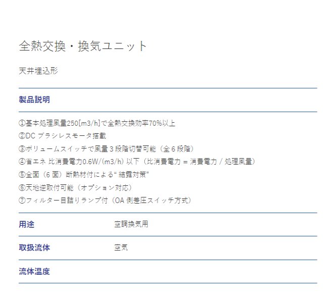
| 产品参数 | |||
|---|---|---|---|
| 标准换气量m3/h | 2 | ||
| 000 | |||
| 机外静音Pa | 196 | ||
| 送风机×台数 | 1?-RS×2 | ||
| 电动机kW | 1.5×2 | ||
| 噪音dB(A) | 73 | ||
| 全熱交換効率 | 75% | ||
| 質 量kg | 600 | ||
| 是否进口 | 是 | ||
| 生产地 | 日本 | ||
| 可售卖地 | 北京;天津;河北;山西;内蒙古;辽宁;吉林;黑龙江;上海;江苏;浙江;安徽;福建;江西;山东;河南;湖北;湖南;广东;广西;海南;重庆;四川;贵州;云南;西藏;陕西;甘肃;青海;宁夏;新疆 | ||
| 型号 | EU-700FA-e | ||
.jpg)
.jpg)
.jpg)







