商铺名称:扬州雷明电气有限公司
联系人:张凯()
联系手机:
固定电话:
企业邮箱:845469314@qq.com
联系地址:宝应县阳光锦城26幢03号
邮编:225800
联系我时,请说是在机床母机网上看到的,谢谢!
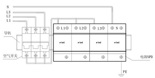
电源电涌防雷器具备很高的雷电流泄放能力,单片模块冲击放电电流达到15kA(10/350),通流200KA(8/20),通过国家专业检测机构的雷电防护I类/II类试验,适用于雷击风险较高地区(LPZ0B或LPZ0B与LPZ1交界区)电源系统的防雷,是交流电源设备的第一级防雷保护产品。
产品特色:
选用优质防雷元件,高可靠质量保证;
通能力可达200kA(8/20μs);
冲击放电电流可达15kA(10/350μs);
温控脱扣装置,使用寿命长,故障失效指示;
响应时间快,安装简单,维护方便。
10/350浪涌保护器功能特点
1:标准35mm导轨安装,结构紧凑,双接线端(凯文方式)。
2:配有劣化状态指示灯(红灯亮,防雷器故障,需及时更换),方便安装与维护。
3:B+C级保护,泄放能量大,残压低。(每线Iimp50KA Up≤ 2000V)
4:采用独有自点火技术,无工频续流,无漏电流,安全系数高。
5:核心部件采用抗氧化、耐电弧烧蚀、性能优异的特殊合金材料制成,抗环境能力强,使用寿命长。
